Railroad Gazette/Volume 38/Number 5/Ferry Houses

A Group of New Ferry Houses.


The accompanying half-tone illustration shows the general appearance of the group of three ferry houses being built by the Erie, Delaware, Lackawanna & Western, and the Central of New Jersey railroads respectively.

Central Railroad of New Jersey.
Delaware, Lackawanna & Western.
Erie Railroad.

West Street Elevation of New Ferry Houses at 22d and 23d Streets, New York City.

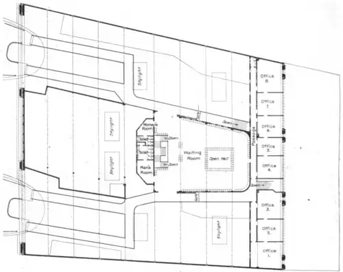
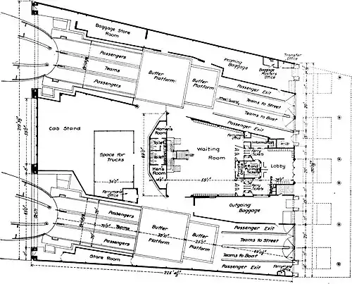
As shown, the group occupies a space of two blocks extending along the river front and West street between 22d and 23d streets. A description and the general plan of the Lackawanna ferry house which forms the center of the group was printed in the Railroad Gazette of Jan. 15, 1904, and the first and second floor plans of the Erie and the Central of New Jersey houses are given herewith. Kenneth M. Murchison, New York City, furnished the complete plans for both the Lackawanna and Erie houses as well as for the exterior of the Central Railroad of New Jersey ferry house. The steel work and the interior designs of the latter were made under the direction of J. O. Osgood, Chief Engineer, and A. H. Dakin, Jr., Assistant Engineer. All three ferry houses are of steel frame construction sheathed on the outside with ornamental sheet copper. The roof is of slag and the interior finish is of sheet metal painted and trimmed with light wood. There are no projecting hoods as in the majority of ferry houses, but the boats run directly into the buildings, thus affording excellent protection to the passengers in stormy weather. By means of two suspended transfer bridges the passengers are transferred from the upper deck of the ferry boats directly into the second story of the ferry houses. The ground floor of each of the houses is provided with a large general waiting room, toilet rooms, baggage rooms, ticket offices, information bureaus, etc. The second floors contain a large waiting room and office rooms. The floors of the main waiting room and passenger exits of the Central’s ferry house are of asphalt and the driveway for teams is of creosoted wood block. While the floor of the Erie’s main waiting room is of ⅞ in. maple, the floors of its passenger exits are of ⅞ in. yellow pine, and the driveway for teams is of 3 in. spruce.

General Plan Showing Location of New Ferry Houses.

The Central’s ferry house has one slip and the Erie has two slips, whereas the Lackawanna has three slips; two of these are to be used for the boats running to its Hoboken railroad terminal and the other is to be used for the boats running on its ferry to 14th street, Hoboken. Each house is provided with electric signs bearing the name of the railroad and the name of the ferry. A shed 50 ft. wide and about 600 ft. long made of iron and glass will extend along the front of the three buildings, and the cars which come down 23d street will pass around a loop and

Second Floor Plan.

Ground Plan.

General Plan of the Erie Railroad Ferry House at 23d Street, New York City.

Second Floor Plan.

Ground Plan.

General Plan of the Central Railroad of New Jersey Ferry House at 22d Street, New York City.

go under this shed, depositing their passengers at the doors of the three ferry houses. The city proposes to buy the block in front of the group and turn it into a handsome approach or esplanade. The estimated cost of the three ferry houses is about $850,000, and it is expected that the buildings will be completed in the early fall of the present year.