Page:Popular Science Monthly Volume 86.djvu/619
THE THOMAS W. EVANS MUSEUM AND DENTAL INSTITUTE
The recent dedication of the Evans Dental Institute School of Dentistry, University of Pennsylvania, marks an epoch in the history of dental education as it formally opens the largest and best equipped plant in the world, devoted exclusively to the teaching of dental science. The standard which the Evans Institute will be able to maintain will be of the very highest type, and will result in carrying out, in the most effective manner possible, the wishes of the Philadelphia philanthropist, by whose name the institute and school will hereafter be known.
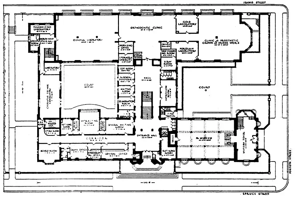
The new building is in the Tudor style of architecture which prevailed in the time of Henry VIII. and might be described as collegiate gothic, being in keeping with other late buildings, constructed of Indiana limestone and hardburnt brick. It was designed by John T. Windrim. Ground was broken on September 24, 1912, and the cornerstone was laid on May 3, 1913. The building has a frontage on Spruce Street of 242 feet, and a depth to Irving Street along Fortieth Street of 161 feet; It is built in the form of the letter H and has three stories over a high basement. The benefaction of Dr. Evans includes this building with its equipment and a substantial endowment fund.
Among the interesting features of the building are the square tower and the Evans Museum. The tower, which is at the main entrance at the center of the Spruce Street wing, is thirty-eight feet square, rising to eighty-four feet. In the center of the tower, beginning at the second story and reaching almost to the top of the third floor, is a large window, which lights the library on the second floor.
The Evans Museum occupies the east half of the Spruce Street wing, and is as nearly fire and burglar proof as modern science can make it. This houses the priceless Evans collection.

Plan of the First Floor.