Page:Popular Science Monthly Volume 56.djvu/431
Electric currents must always circulate in closed paths—that is, the current that starts out from a generator must return to it, and the amount coming back is the same as that which leaves. The action of an electric generator can be understood by comparing it with that of a water pump pumping into a pipe which runs around from the delivery end to the suction. With such an arrangement it can be seen that the action of the pump would be to keep the water in circulation, but the same water would be pumped through the pump and the pipe all the time. With an electric

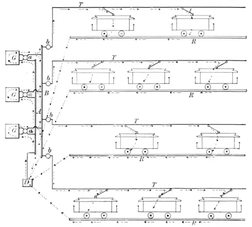
Fig. 22.-Diagram illustrating the Manner in which the Electric Current flows from the Generators to the Cars upon the Tracks.
generator the action is the same, and in Fig. 22 the current flowing along any one of the tracks follows the course indicated by the arrows. The currents pass out to the several tracks through the trolley wires T T T T, and return through the tracks R R R R. The bus bar A is connected with a plate D, which is imbedded in the ground, and is also connected with the ends of the rails R R R R. Suppose for a moment that the two lower generators are out of service, their switches a a being turned so as to disconnect them from the bus A, and, further, suppose that the three lower h switches are open, so that the current can only pass to the